Services

Structural Engineering

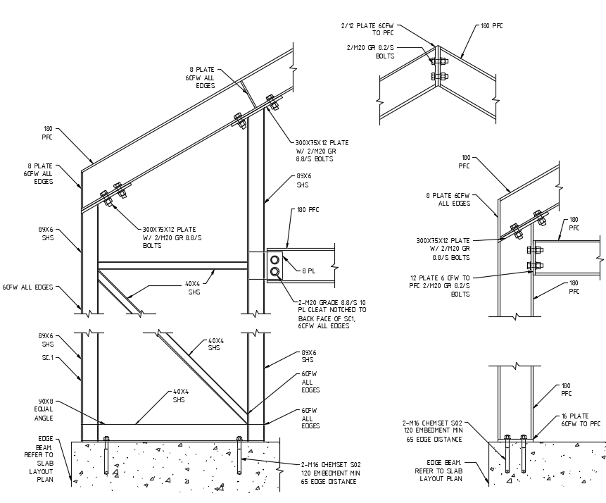
Structural engineering is a branch of civil engineering where experts use their knowledge to design and construct safe and stable structures through a combination of civil engineering, physics, mathematics, materials, and environmental considerations, applying their skills, the Australian standards and the National Construction Code.

Our services

Engaging a structural engineer is essential for building projects involving stability and load-bearing components as they may be required by local councils, banks, or insurance companies, ensuring both legal compliance and peace of mind for a safe and well-designed project.

Civil and Geotechnical engineering

Geotechnical engineering involves understanding the behaviour of soil and rock in relation to man-made structures, with engineers finding practical solutions using scientific methods to predict and control ground responses to human activities.

Our services